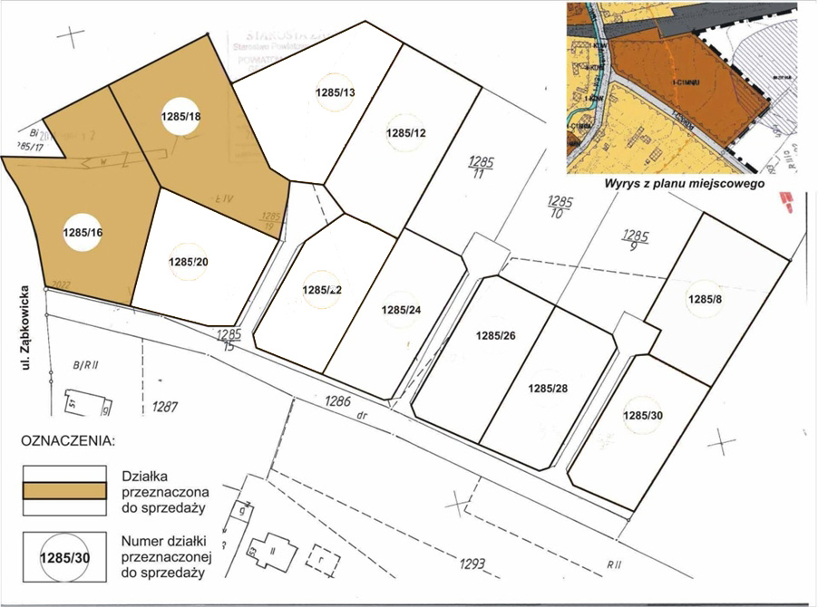
| WÓJT GMINY CIEPŁOWODY ogłasza pierwszy ustny przetarg na sprzedaż nieruchomości stanowiących własność Gminy Ciepłowody. |
Przetarg odbędzie się 7 września 2018r. w siedziebie Urzędu Gminy Ciepłowody |
Opublikowane przez: Grzegorz Karolczak | Data wprowadzenia: 2018-08-07 07:24:48 | Data modyfikacji: 2018-08-07 07:25:39.
Data wprowadzenia: 2018-08-07 07:24:48
Data modyfikacji: 2018-08-07 07:25:39
Opublikowane przez: Grzegorz Karolczak
Data modyfikacji: 2018-08-07 07:25:39
Opublikowane przez: Grzegorz Karolczak
| « powrót |
ontrast